Nieuw-Weerdinge - Raiffeisenstraat 69
Nieuw-Weerdinge - Raiffeisenstraat 69
Ruime vrijstaande woning met slaap- en badkamer op de begane grond, dubbele garage en fraaie tuin in Nieuw-Weerdinge.
Aan de Raiffeisenstraat 69 in Nieuw-Weerdinge staat deze goed onderhouden vrijstaande woning met royale tuin, dubbele garage en vier slaapkamers. De woning biedt verrassend veel leefruimte, is keurig afgewerkt en beschikt over een moderne badkamer, tuinkas en een prachtige tuin met vijver en fruitbomen. Een ideale gezinswoning óf levensloopbestendige woning. Dankzij de slaap- en badkamer op de begane grond is gelijkvloers wonen hier uitstekend mogelijk.
Indeling:
Kelder
- handige provisieruimte, ideaal voor extra opslag.
Begane grond:
- hal/entree, met meterkast en trap naar de verdieping;
- slaapkamer;
- woonkamer, voorzien van een houtkachel;
- keuken, voorzien van divers inbouwapparatuur;
- bijkeuken, met wasmachine- en drogeraansluiting;
- tussenhal;
- royale moderne badkamer met een grote inloopdouche, ligbad, wastafelmeubel, hangtoilet en fonteintje.
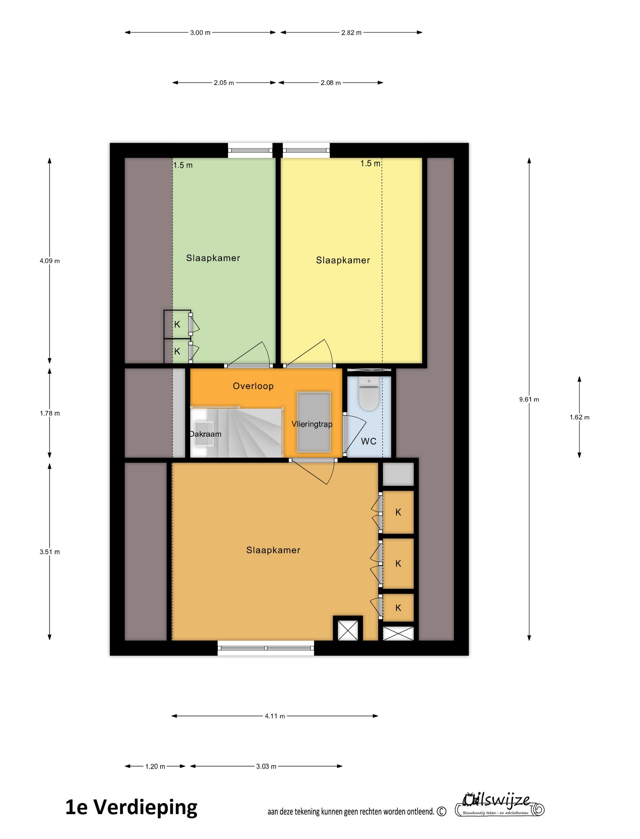
Eerste verdieping:
- overloop;
- 3 slaapkamers;
- toiletruimte met hangtoilet en fonteintje.
Tweede verdieping:
- bergzolder (via vlizotrap toegankelijk).
Extern:
- fraai aangelegde tuin voorzien van een ronde vijver en verschillende fruitbomen;
- royale dubbele garage, voorzien van betonvloer en extra groepenkast;
- tuinkas.
Algemeen:
- bouwjaar: 1976
- aantal kamers 5, waarvan 4 slaapkamers
- woonoppervlakte 130 m²
- perceeloppervlakte 2.190 m²
- houten kozijnen met deels dubbel en deels HR++ glas
- energielabel C
- cv-ketel Intergas (2021, eigendom)
Deze woning biedt het beste van twee werelden: de rust van een dorpse omgeving gecombineerd met de ruimte en voorzieningen van een volwaardige gezinswoning. Dankzij de royale tuin, moderne voorzieningen en dubbele garage is dit een woning waar u direct kunt genieten van comfortabel wonen in Nieuw-Weerdinge.
Interesse? Bel ons voor meer informatie!